Próximas Obras

Descubre las próximas obras de Saez Colmenarejo Estudio de Arquitectura y conoce los proyectos en desarrollo que estamos llevando a cabo. En esta sección, te presentamos nuestras iniciativas más recientes en nuevas construcciones, reformas y desarrollos urbanísticos. Cada proyecto está diseñado con un enfoque innovador y de alta calidad, reflejando nuestra experiencia y compromiso con la excelencia arquitectónica.

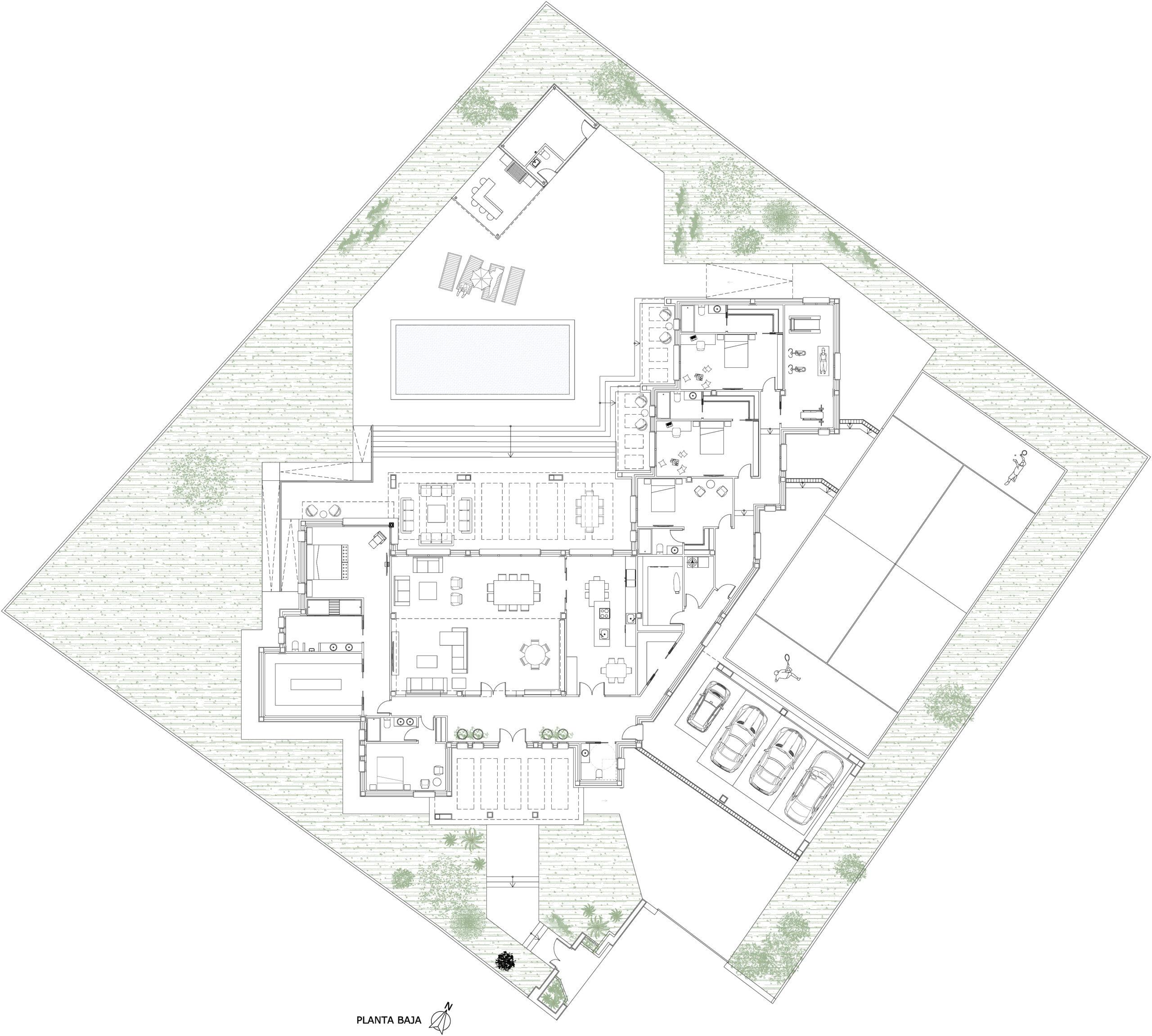
PC01 Vivienda en “El Bosque” Villaviciosa de Odón

Encargo: Proyecto y dirección de obra
Superficie 545m2 construidos de vivienda

PC02 Vivienda en Colmenar Viejo

Encargo: Proyecto y dirección de obra
Superficie 189 m2 construidos de vivienda

PC03 Vivienda en Colmenar Viejo

Encargo: Proyecto y dirección de obra
Superficie 284 m2 construidos de vivienda

¡Solicita información en Estudio de arquitectura Sáez Colmenarejo! Mantente informado sobre nuestras últimas obras y cómo estamos transformando conceptos en realidades excepcionales. Para obtener más detalles sobre nuestros proyectos actuales o para iniciar tu propio proyecto, contacta con nosotros. Llámanos al 676 856 533, envíanos un WhatsApp o escríbenos a raquelsaez@saezcolmenarejo.com. ¡Estamos listos para ayudarte a materializar tus ideas arquitectónicas!

Ir al contenido
This site is registered on wpml.org as a development site. Switch to a production site key to remove this banner.